Mieszkanie Mielno
Mielno Pokaż na mapie ›
Odświeżone: Wtorek, 23 Grudzień, 2025 14:46
906 374 zł
20599 zł/m2
Szczegóły ogłoszenia
- Kategoria: Mieszkania / Sprzedaż
- Powierzchnia:44 m2
- Liczba pokoi:2 pokoje
- Zabudowa:Apartamentowiec
- Piętro :2 piętro
- Liczba pięter:3 piętra
- Rynek:Pierwotny
- Sprzedaż:Pośrednik
- Cena: 906 374 zł / 20599 zł/m2
Opis oferty
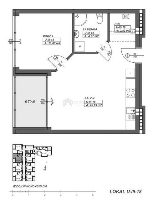
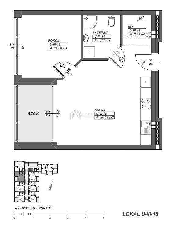
Dwupokojowy apartament 120 m od plaży!Przedstawiamy Państwu przestronny 2-pokojowy apartament U-III-18 o pow. 44,66 m2.
Apartament położony jest na 2 piętrze.
Wystawy okien od strony zachodniej.
Składa się z:
- salonu z aneksem kuchennym o pow. 26,19 m2
- sypialni o pow. 11,80 m2
- łazienki o pow. 4,77 m2
- holu o pow. 2,83 m2
Do apartamentu przynależy loggia o pow. 6,70 m2
Apartament sprzedawany w standardzie deweloperskim, wyposażony w klimatyzator ciepło/zimno. Teren kompleksu ogrodzony i monitorowany. Możliwość wykończenia apartamentu pod klucz przez profesjonalną firmę. Na zdjęciach przykładowe wizualizacje wykończenia apartamentu.
Cena zawiera 23% VAT.
Miejsce postojowe: obligatoryjnie (+35.000 zł brutto)
LINK DO OFERTY:
http://ww.e-mhouse.pl/numer/2977
Zapraszamy do naszych biur; KOSZALIN ADAMA ASNYKA 5, KOŁOBRZEG POMORSKA 2C, ŚWINOUJŚCIE BOH. WRZEŚNIA 77
JEŻELI DO TEJ PORY Z NAMI NIE WSPÓŁPRACOWAŁEŚ, ZAPOZNAJ SIĘ Z ZASADAMI NA NASZEJ STRONIE, ZAKŁADKA POŚREDNICTWO LUB KLIKNIJ W LINKA https://www.e-mhouse.pl/posrednictwo/dla-kupujacych
Treść niniejszego ogłoszenia nie stanowi oferty handlowej w rozumieniu Kodeksu Cywilnego.
Numer oferty: 2977
Sprawdź zainteresowanie tym ogłoszeniem
Wyświetlenia
Data dodania
Ostatnio widziany
Obserwujących
Wysłane zapytania
Odsłony telefonu
Powiadom o podobnych ogłoszeniach
Lokalizacja: Mielno
Kategoria: Nieruchomości » Mieszkania » Sprzedaż
Cena: od 770500 zł do 1042500 zł Powierzchnia : od 37 m2 do 51 m2
Chcę otrzymywać powiadomienia o nowych ofertach
- Wypromuj ogłoszenie
- Zgłoś naruszenie
- Drukuj ulotkę
- Edytuj/usuń ogłoszenie
- Udostępnij ogłoszenie
- Dodaj na Facebook














